Обяви За нас Контакти
Продава 2-СТАЕН
град Пловдив, Тракия
При запитване
История на цената
Коригирана в 16:59 на 27 октомври, 2025 год.
Обявата е посетена 145 пъти.
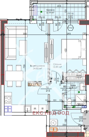
Площ:
74 m2
Етаж:
6-ти от 18
Строителство:
Тухла, 2024 г.

Описание на имота:


Компания X представя на Вашето внимание двустаен апартамент в кв. Тракия.

МЕСТОПОЛОЖЕНИЕ: Квартал Тракия е един от по-големите квартали в град Пловдив, който се намира в северната част на града. В Тракия има множество училища, детски градини, магазини, заведения за хранене и други удобства, които правят квартала желано място за живеене.

СТРОИТЕЛСТВО: Апартаментът се намира на 6-ти етаж, тухла.

РАЗПРЕДЕЛЕНИЕ: Жилището разполага с площ от 74кв.м всекидневна, спалня, баня с тоалета, склад, тераса.

СЪСТОЯНИЕ: В строеж.

Заповядайте да Ви го покажем. Използвайки нашите услуги Вие ще превърнете закупуването на новия си дом в едно приятно изживяване, ще получите персонален консултант, съдействие при кандидатстване за кредит от всички банки в България, интериорни дизайнери и екип, който да се погрижи за нужните документи по Вашата сделка. На Ваше разположение сме всеки ден, от понеделник до неделя от 09:00 до 20:00ч. Възползвайте се от безплатна консултация в наш офис, където ще ви спестим време и ще ви запознаем с всички актуални имоти в България, отговарящи на Вашето търсене. Свържете се с нас нужен Вие само кодът на имотът:274-18213
Особености
Тухла
За контакт:
0887779990
Агенция:
ЕКС НВД ООД
088777990
ЕКС НВД ООД logo
В imot.bg от 2023 г.
xnvd_plovdiv.imot.bg
Адрес:
област Пловдив, гр. Пловдив, бул. Мария Луиза 43 А
ИЗПРАТИ ЗАПИТВАНЕ
ИЗПРАТИ ЗАПИТВАНЕТО

Продава 2-СТАЕН
град Пловдив, Тракия
Обява: 1b173141539393061

При запитване
История на цената

ЗАПАЗИ ОБЯВАТА

Местоположение: град Пловдив, Тракия

Допълнителни данни за имотите в района и сравнение с други райони

Покажи

Период

и 2 месеца

* Средните цени са определени чрез медианна стойност